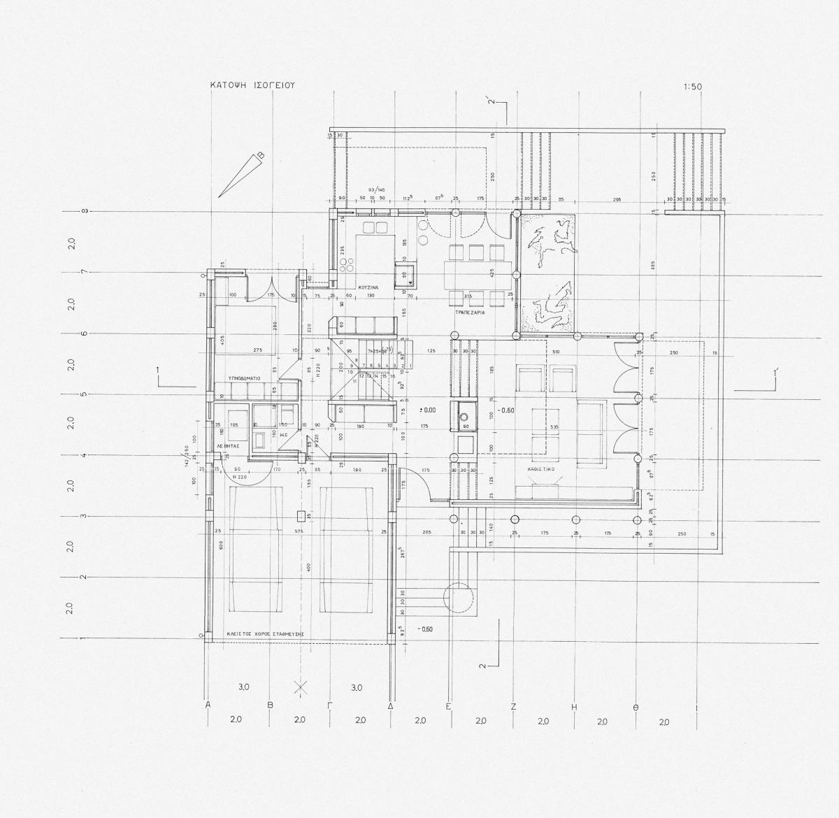
ΚΑΤΟΙΚΙΑ ΣΤΗ ΝΕΟΧΩΡΟΥΔΑ ΘΕΣΣΑΛΟΝΙΚΗΣ

Επιστροφή στα έργα μας

ΜΕΛΕΤΗ: 2002-2003
ΟΛΟΚΛΗΡΩΣΗ ΕΡΓΟΥ: 2004
Ναβροζίδης Ιωάννης Αρχιτέκτονας

Η κεντρική ιδέα της σύνθεσης είναι ο εσωτερικός εξώστης της κατοικίας και η διακριτή διάταξη των όγκων των υπνοδωματίων γύρω από αυτόν.

Η υπερυψωμένη οροφή στο κέντρο της κατοικίας και τα κενά μεταξύ των όγκων, δημιουργούν ανοίγματα που την διαπερνούν σε όλο το ύψος, και αφήνουν στο φυσικό φως να αλλάζει το σκηνικό του εσωτερικού χώρου προσφέροντας στους ενοίκους την αίσθηση της αλλαγής των εποχών αλλά και των ωρών κατά την διάρκεια της ημέρας.

MENU