ΚΤΙΡΙΟ ΟΡΟΦΟΔΙΑΜΕΡΙΣΜΑΤΩΝ ΣΤΗΝ ΚΑΤΕΡΙΝΗ

Επιστροφή στα έργα μας

ΜΕΛΕΤΗ: 1999-2000
ΟΛΟΚΛΗΡΩΣΗ ΕΡΓΟΥ: 2001
Ναβροζίδης Ιωάννης Αρχιτέκτονας

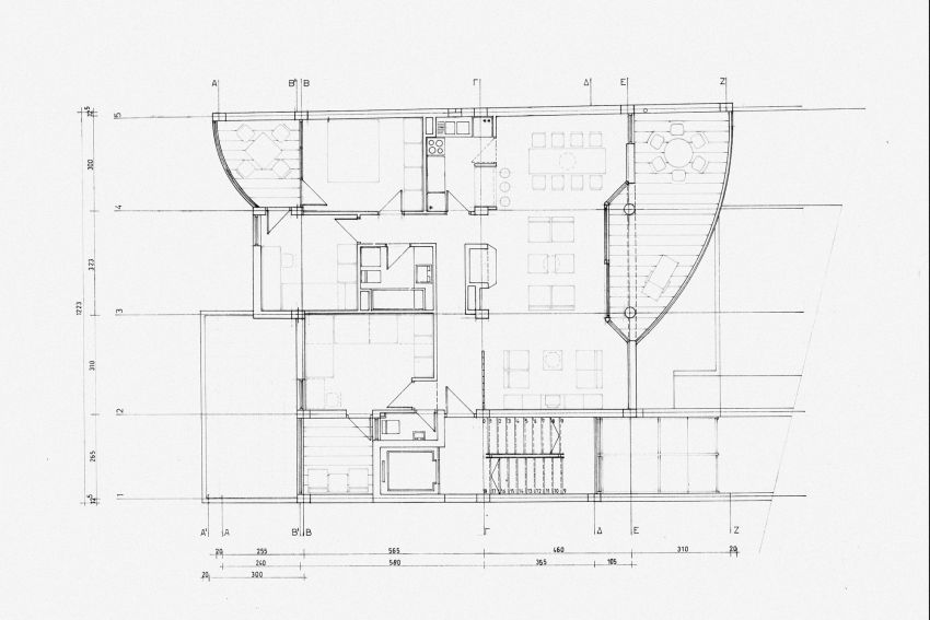
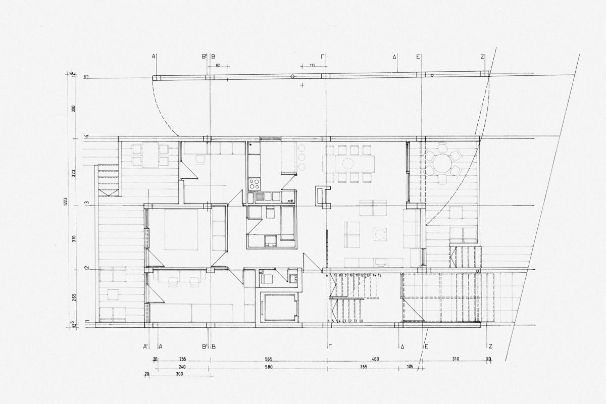
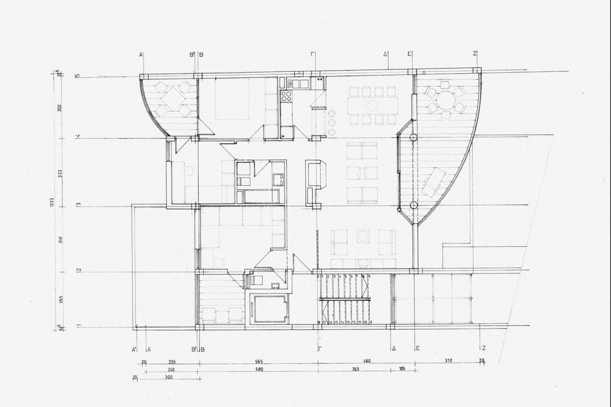
Το κτίριο αποτελείται από τέσσερα οροφοδιαμερίσματα. Στους ορόφους, ο καμπύλος εξώστης, εκμεταλλεύεται την  έντονα πλάγια οικοδομική γραμμή, προβάλλει τρία μέτρα μπροστά από το κτίριο και δίνει την δυνατότητα ανάπτυξης καλά σκιασμένου καθιστικού χώρου, επιτρέποντας στους ενοίκους να απολαμβάνουν την θέα του Ολύμπου.

Στο ισόγειο η εκμετάλλευση της κλίσης του οικοπέδου και της υψομετρικής του διαφοράς με τον δρόμο, επιτρέπει την δημιουργία διαμερίσματος με υπερυψωμένο κήπο και στηθαία που το προστατεύουν από την άμεση επαφή με τον δρόμο.

MENU