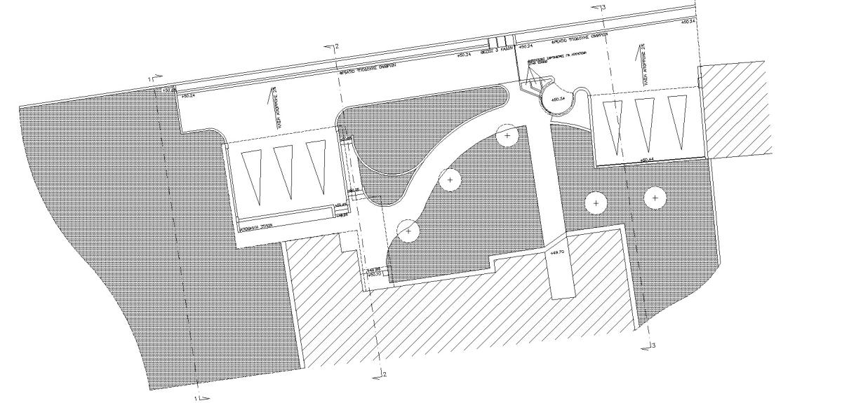
Η διαμόρφωση προβλέπει, σύμφωνα με την απαίτηση του ιδιοκτήτη, τρεις στεγασμένες θέσεις στάθμευσης επισκεπτών εξωτερικά της υπάρχουσας κατοικίας και τρεις επίσης στεγασμένες θέσεις των ενοίκων, εντός του αύλειου χώρου.
Η κλίση του στεγάστρου των θέσεων στάθμευσης, εντός του αύλειου χώρου, σε συμφωνία με τις στέγες της κατοικίας, ενοποιεί την σύνθεση.
Οι καμπύλες επιφάνειες της αυλόπορτας την προβάλλουν δυναμικά και την συνδέουν αρμονικά με τον καμπύλο διάδρομο εισόδου στην κατοικία.