ΙΔΙΩΤΙΚΟ ΚΤΕΟ ΣΤΗΝ ΚΑΤΕΡΙΝΗ

Επιστροφή στα έργα μας

Ι.ΚΤΕΟ OLYMPOS ΣΤΗΝ ΚΑΤΕΡΙΝΗ
ΜΕΛΕΤΗ: 2018-2019
ΟΛΟΚΛΗΡΩΣΗ ΕΡΓΟΥ: 2020
Ναβροζίδης Ιωάννης Αρχιτέκτονας

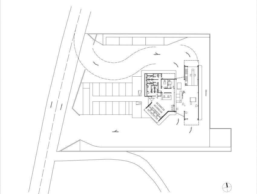
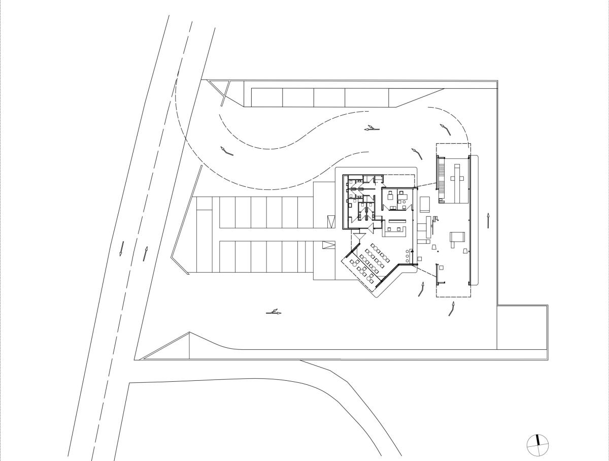
Την κεντρική ιδέα της αρχιτεκτονικής σύνθεσης αποτελεί ο συνδυασμός τριών όγκων διαφορετικής γεωμετρίας, που στεγάζουν και προβάλλουν εξωτερικά τους τρεις τομείς της λειτουργικής οργάνωσης του κτιρίου, τον έλεγχο των οχημάτων, τον χώρο της γραμματείας και των γραφείων και τον χώρο υποδοχής.

Η χρήση χρωμάτων αναδεικνύει τους όγκους ενώ η υψομετρική διαβάθμιση δίνει την δυνατότητα της ταυτόχρονης θέασης των στοιχείων της κτιριακής σύνθεσης από τον επισκέπτη.

MENU