ΤΡΙΩΡΟΦΗ ΑΣΤΙΚΗ ΚΑΤΟΙΚΙΑ ΣΤΗΝ ΧΑΤΖΟΓΛΟΥ

Επιστροφή στα έργα μας

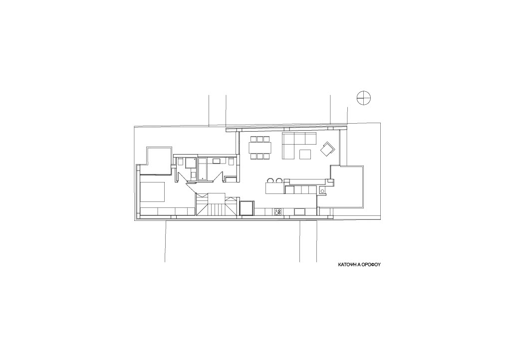
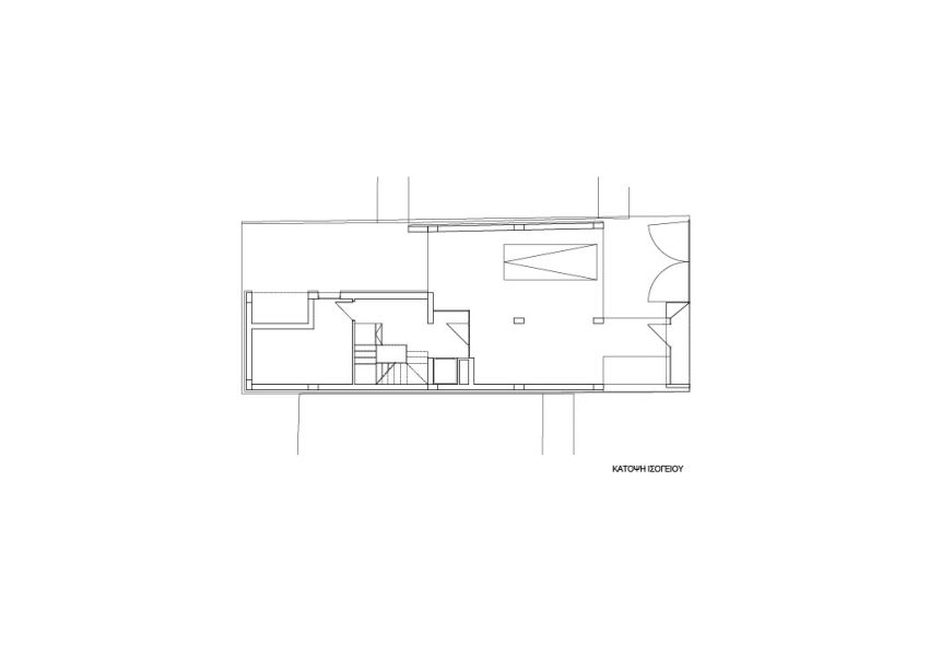
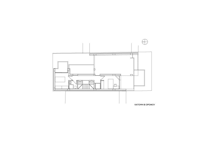
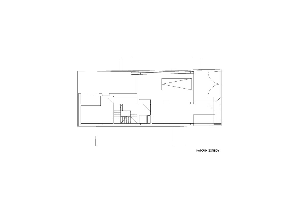
ΤΡΙΟΡΟΦΗ ΑΣΤΙΚΗ ΚΑΤΟΙΚΙΑ ΣΤΗΝ ΧΑΤΖΟΓΛΟΥ
ΜΕΛΕΤΗ: 2020
ΟΛΟΚΛΗΡΩΣΗ ΕΡΓΟΥ: 2022
Ναβροζίδης Ιωάννης Αρχιτέκτονας

Πέντε εμφανείς όγκοι αποτραβιούνται σταδιακά από την ρυμοτομική γραμμή, εφάπτονται στα όρια του οικοπέδου παρακολουθώντας τις προβολές των όμορων κτιρίων  και εντάσσουν την κατοικία  στην ρυμοτομία δημιουργώντας μία δυναμική αρχιτεκτονική φόρμα.

MENU